M100 ECOHABITA
Des de 145.000€ en 7 MESES


M100 ECOHABITA
Descripción técnica
El Modelo EcoHabita 100 es una vivienda unifamiliar de 100 m² construidos, diseñada bajo criterios de eficiencia, funcionalidad y confort. Su distribución está optimizada para una vida familiar práctica, con un esquema lineal y abierto que permite aprovechar al máximo la luz natural.
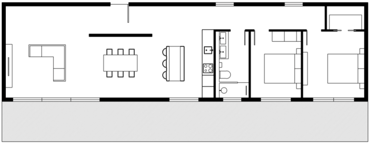
Distribución interior
ZONA DE DÍA (abierta 31m2)
Amplio salón con espacio para sofás en y zona multimedia.
Comedor central con capacidad para 4 personas.
Cocina integrada de 4,74 m de longitud, con isla y espacio para taburetes.
ZONA DE NOCHE
Dormitorio principal (13m2): con espacio para cama doble y almacenamiento.
Segundo dormitorio (11m2): pensado para dos camas, litera o cama doble compacta.
Vestidor (3m2): ideal como vestidor y zona de almacenaje.
Baño completo (4m2): equipado con lavabo doble, inodoro y ducha amplia.
Superficie construida
Dimensiones exteriores: 19,96 m de largo x 5,41 m de ancho.
Superficie útil aproximada: 100 m²
Terraza con posibilidad de porche de 50 m², integrado en la fachada posterior y accesible desde salón, cocina y dormitorios.
Sistema constructivo
Estructura principal: entramado ligero de madera industrializada, fabricada en taller y ensamblada en obra.
Opcional: estructura en CLT (madera contralaminada) bajo demanda.
Aislamiento térmico y acústico: integrado en la propia estructura, cumpliendo normativa vigente en eficiencia energética.
Elementos técnicos incluidos
Proyecto de arquitectura y dirección de obra.
Gestión y obtención de licencias.
Instalaciones completas: electricidad, fontanería y climatización preparada para sistemas de alta eficiencia.
3 tipos de acabados.
SOLICITUD DE MODELO


